APPARTAMENTO INDIPENDENTE CON GIARDINO, RIMESSA E MANSARDA

€ 295000

Descrizione

In zona residenziale tranquilla, proponiamo in vendita appartamento di circa 130 mq, posto al primo ed ultimo piano, con ingresso indipendente dal piano terra e giardino privato recintato.

L’abitazione si sviluppa prevalentemente su un unico livello ed è caratterizzata da ambienti ampi, ben distribuiti e luminosi, con pavimenti in parquet e finiture curate.

La zona giorno è composta da un soggiorno di generose dimensioni, con accesso diretto a una terrazza. La cucina abitabile, separata, è dotata di camino e presenta due finestre oltre a una porta-finestra che conduce a una terrazza coperta con travi in legno.

La zona notte principale, ben separata tramite disimpegno, comprende tre camere da letto, di cui due matrimoniali, e due bagni finestrati, uno con vasca e uno con doccia. È presente inoltre un ripostiglio interno.

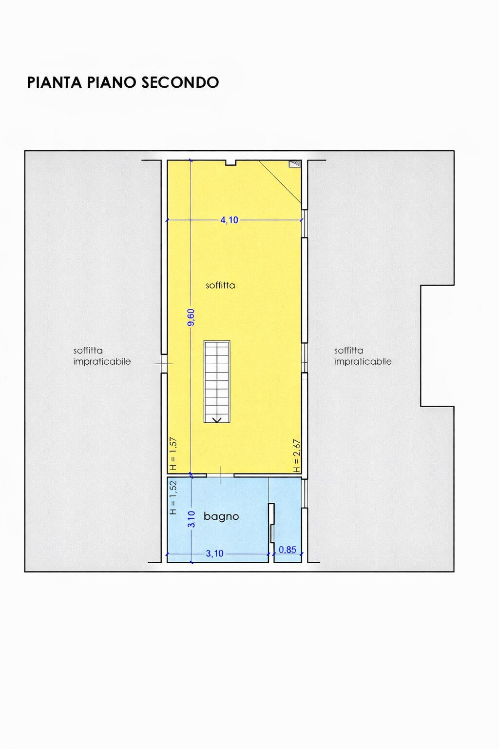
Al piano superiore si trova una soffitta finestrata completamente rifinita, adibita a camera da letto, dotata di bagno privato, utilizzabile come quarta camera o stanza indipendente.

L’immobile dispone di ampie terrazze abitabili, tra cui una di circa 150 mq, adatte all’utilizzo esterno.

Completano la proprietà un garage di circa 16 mq, un ripostiglio esterno con accesso dalla terrazza, riscaldamento autonomo, impianto di climatizzazione, sistema di allarme e infissi in legno con doppi vetri. L’appartamento gode di ottima esposizione su quattro lati, garantendo buona luminosità durante tutto il giorno.

Soluzione adatta a famiglie che cercano indipendenza, spazi interni ben distribuiti e ampie superfici esterne, in un contesto residenziale comodo ai servizi.

Tutti i dettagli

Richiedi informazioni

Contatti singolo immobile