APPARTAMENTO CON INGRESSO INDIPENDENTE, SAN MARCELLO, PISTOIA

€ 150000

Descrizione

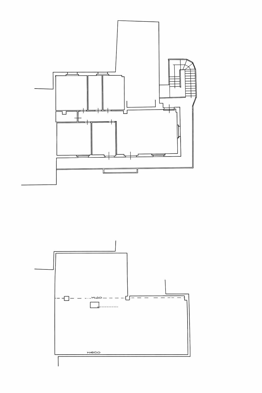
Proponiamo in vendita ampio e luminoso appartamento di circa 128 mq calpestabili, situato al primo ed ultimo piano, per un totale di 7,5 vani.

L’immobile si apre su un grande salone di circa 35 mq, accogliente e luminoso, ideale come zona living e conviviale. La zona notte è composta da due spaziose camere matrimoniali e una terza camera singola/studio, perfetta anche come stanza per gli ospiti o per lavorare da casa.

Completano la proprietà:

  • cucina abitabile,

  • due bagni (uno con doccia e uno con vasca),

  • ampia soffitta/sottotetto, ideale come spazio di deposito.

All’esterno l’appartamento è valorizzato da due ampie terrazze che circondano due lati dell’immobile, perfette per pranzi all’aperto e momenti di relax.

La proprietà include inoltre:

  • circa 100 mq di giardino,

  • 2 posti auto,

  • terreno di circa 1000 mq con alberi da frutto, situato a pochi metri dall’abitazione.

    Riscaldamento a gasolio, con possibilità di allaccio al metano.

Soluzione ideale per chi cerca spazi generosi, luminosità e tranquillità, senza rinunciare alla comodità dei servizi del paese.

Tutti i dettagli

Richiedi informazioni

Contatti singolo immobile