Ampio Appartamento da rimodernare in zona Villa Maria

€ 170000

Descrizione

Siete
alla ricerca di un appartamento ampio e luminoso in una zona comoda e
ben servita? Questa abitazione, posta al primo piano di un fabbricato
condominiale dotato di ascensore,

nei pressi di Villa Maria, offre
grandi potenzialità e la possibilità di rinnovare gli spazi secondo
le vostre preferenze, trasformando l’appartamento nella vostra casa
ideale. 
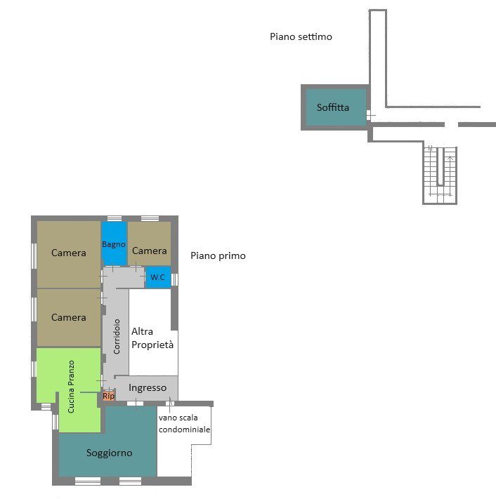
L’abitazione
è

composta da un ampio ingresso,
con spazio sufficiente per un armadio o un appendiabiti, da un
soggiorno spazioso e luminoso grazie alle doppie finestre che si
affacciano sul balcone,

perfetto per rilassarsi in famiglia o
ricevere ospiti. Il balcone offre uno spazio all’aperto ideale per
piante o momenti di relax. La cucina /pranzo un’ambiente funzionale
con spazio per un

tavolo da pranzo, questa area può essere rinnovata
per diventare una cucina moderna e confortevole, le tre camere, tutte
dotate di finestre che forniscono abbondante luce naturale,

possono
essere adattate a diverse esigenze, come stanze per i bambini, studio
o stanza degli ospiti, due bagni, uno con vasca e l’altro con doccia,
un ripostiglio pratico per deposito o

organizzazione domestica.
Conclude la proprietà una soffitta situata al piano sottotetto,
raggiungibile tramite il vano scale condominiale.

Tutti i dettagli

Richiedi informazioni

Contatti singolo immobile